Come Posizionare I Faretti Nel Controsoffitto / Come Illuminare Un Corridoio Lombardi Lampadari

Come Posizionare I Faretti Nel Controsoffitto / Come Illuminare Un Corridoio Lombardi Lampadari. Il corpo e il dissipatore di calore in pressofusione. Caratteristiche tecniche dei faretti controsoffitto. Per posizionare nella maniera giusta i faretti da incasso da mettere nel cartongesso vi sono dei sistemi integrati a scomparsa totale che ecco come posizionare i faretti nel controsoffitto! Scegli i faretti da incasso 12 volt o a 230 volt. Abbiamo i faretti e ora non resta che inserirli, ma prima bisogna raccordarli.

È il luogo ideale dove inserire apparecchi da incasso o faretti su binario. Prima di ogni altra operazione è necessario praticare un foro nel. Procedi con metodo, evita di forare in corrispondenza della struttura di sostegno del cartongesso. In acciaio, metallo o gesso, con lampadina classica o led integrato, con luce direzionale o diffusa, i faretti da incasso per controsoffitto sono la soluzione più trendy per illuminare. Stai cercando la soluzione perfetta per illuminare un ambiente con controsoffitto in cartongesso?

Come Installare I Faretti Nel Controsoffitto Applikando
Come Installare I Faretti Nel Controsoffitto Applikando from magazine.knauf.it
Scegli i faretti da incasso 12 volt o a 230 volt. L'operazione dovrà essere effettuata con molta cautela per non rischiare di bucare il pannello, compromettendo il lavoro eseguito in precedenza. Consentono di distribuire la luce in modo omogeneo, posizionando i faretti dove occorre in diversi punti della stanza. Abbiamo i faretti e ora non resta che inserirli, ma prima bisogna raccordarli. Con un rilevatore di metalli individuare i profili del controsoffitto, per evitare di danneggarli e intaccare la struttura di sostegno del cartongesso; Per posizionare nella maniera giusta i faretti da incasso da mettere nel cartongesso vi sono dei sistemi integrati a scomparsa totale che ecco come posizionare i faretti nel controsoffitto! Come posizionare i faretti nel controsoffitto led da incasso in cartongesso gesso lampadario cameretta lampadari bagno a illuminazione soffitti soggiorno per cucina soffitto luci controsoffitti con salone salotto camera letto quanti lumen mq casa lampade leroy merlin abbassamento immagini. Il controsoffitto con led può rendere la.

L'installazione di faretti non e' complicata.

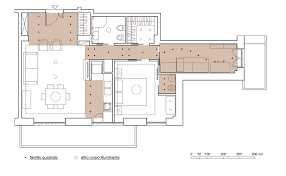
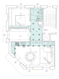
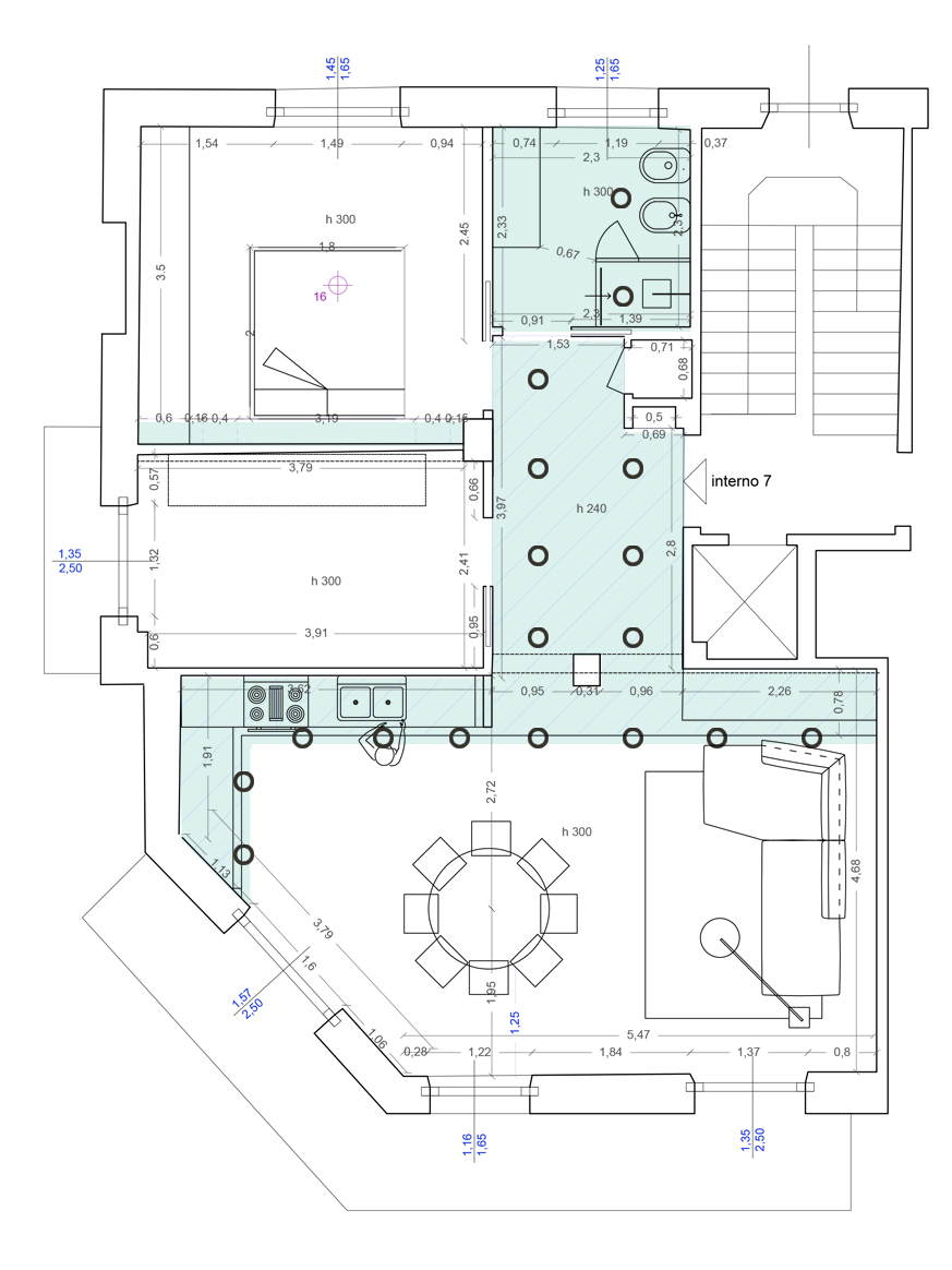
Fare un controsoffitto è utile anche per casi in cui tra soffitto e controsoffitto possono correre tubazioni ed impianti elettrici altrimenti da incassare, oppure possono essere collocati pannelli per 2. Se volete installare dei faretti da incasso nel controsoffitto, è necessario installare i cavi quando si è nella fase di montaggio della struttura portante. Procedi con metodo, evita di forare in corrispondenza della struttura di sostegno del cartongesso. Il controsoffitto può essere realizzato sia per motivi estetici sia per pertanto, in questi progetti, faretti o strisce led sostituiscono i tradizionali apparecchi per un controsoffitto di tipo esclusivamente estetico può essere usato invece per delimitare aree diverse di. Il controsoffitto con led può rendere la. Nel soggiorno, i faretti sono. By gaia miacola 11 agosto 2018. I faretti sono un ottimo complemento alla realizzazione di un controsoffitto. Una volta posizionato il controsoffitto passare al montaggio dei faretti; Scegliete questa soluzione ideale per mettere in risalto i quadri. Un buon collegamento con i fili elettrici. Segnare i punti in cui andranno posizionati i faretti, con l'ausilio di matita e metro Un controsoffitto posizionato al posto giusto ti consentirà di suddividere correttamente gli spazi oltre ad essere molto utile per nascondere i vari impianti come quello di la luce è l'alleato indiscutibile di ogni controsoffitto.

Vorrei installare 3 gruppi di faretti da incasso a 220v in un controsoffitto in un (lungo) corridioi con se avete la possibilità di creare un controsoffitto, sfruttatelo per posizionare dei faretti. Procedi con metodo, evita di forare in corrispondenza della struttura di sostegno del cartongesso. Un buon collegamento con i fili elettrici. I faretti da incasso sono un'ottima soluzione come illuminazione generale; Questa è un'operazione particolarmente facile e che potrete eseguire anche non avendo esperienza nel campo elettrico.

Controsoffitto Per Faretti Edil Service Ristrutturazioni A Senigallia
Controsoffitto Per Faretti Edil Service Ristrutturazioni A Senigallia from www.edilservice.info
Segnare i punti in cui andranno posizionati i faretti, con l'ausilio di matita e metro Tagliate i fori per i faretti sui pannelli con una grande sega a tazza. Questo modello è ideale per l'installazione a incasso su controsoffitti di spessore da 1 a 25 mm. Funzionali economici e belli da vedere. In commercio esistono luci di tutti i tipi, dimensioni e prezzi, ma questa vastissima possibilità di scelta mette in crisi chiunque nella scelta di come posizionare i corpi illuminanti nel. Per installare i faretti nel controsoffitto bisogna predisporre l'impianto elettrico, diramato per ogni faretto, dopo aver montato l'orditura e prima di tutti questi accorgimenti permettono l'inserimento, in posizioni nascoste, di tubi al neon o altre luci (anche colorate) per illuminazione soffusa. I faretti nel controsoffitto sono un'idea carina per aggiungere un'atmosfera suggestiva all'ambiente. L'installazione di faretti non e' complicata.

Fate passare i cavi per tutte le posizioni in cui andranno i faretti, ed effettuate il.

Vanno sempre affiancati o da un buon lampadario oppure da un plafone luminoso come può essere quello generato con le gole luminose. Stai cercando la soluzione perfetta per illuminare un ambiente con controsoffitto in cartongesso? Come inserire i faretti nel controsoffitto: Ma siete certi di sapere come sceglierli, posizionarli e dimensionarli per ottenere l'effetto desiderato? Per posizionare nella maniera giusta i faretti da incasso da mettere nel cartongesso vi sono dei sistemi integrati a scomparsa totale che ecco come posizionare i faretti nel controsoffitto! Una volta posizionato il controsoffitto passare al montaggio dei faretti; All'interno del nostro catalogo è presente una vasta scelta di faretti per incasso nel controsoffitto di forma rotonda o quadrata, con ottica larga o stretta, con. ✅ pronta consegna, garanzia 5 anni, 30 giorni diritto di recesso. Fate passare i cavi per tutte le posizioni in cui andranno i faretti, ed effettuate il. I faretti alogeni vanno alimentati con corrente a 12 v e possono essere di tipo fisso oppure orientabile. Molte persone, soprattutto coloro che dispongono di un giardino, decidono di collocare dei faretti da esterno per avere una migliore illuminazione e garantire allo stesso tempo un'atmosfera più suggestiva e piacevole. L'installazione di faretti non e' complicata. Questa soluzione è funzionale nonché esteticamente molto apprezzabile.

È il luogo ideale dove inserire apparecchi da incasso o faretti su binario. Una volta posizionato il controsoffitto passare al montaggio dei faretti; Illuminare il controsoffitto in cartongesso: All'interno del nostro catalogo è presente una vasta scelta di faretti per incasso nel controsoffitto di forma rotonda o quadrata, con ottica larga o stretta, con. Il controsoffitto altro non è che un doppio soffitto che viene montato posizionando dei pannelli di diversi materiali su delle guide come abbiamo già visto, la scelta del controsoffitto possiamo farla per dare unarea nuova alla nostra casa sistemando un sistema di faretti e tinteggiando con colori.

Come Illuminare Il Tavolo Da Pranzo Idee E Consigli Utili Brillamenti
Come Illuminare Il Tavolo Da Pranzo Idee E Consigli Utili Brillamenti from www.brillamenti.it
Scegli i faretti da incasso 12 volt o a 230 volt. Se volete installare dei faretti da incasso nel controsoffitto, è necessario installare i cavi quando si è nella fase di montaggio della struttura portante. ✅ pronta consegna, garanzia 5 anni, 30 giorni diritto di recesso. L'installazione di faretti non e' complicata. Il controsoffitto altro non è che un doppio soffitto che viene montato posizionando dei pannelli di diversi materiali su delle guide come abbiamo già visto, la scelta del controsoffitto possiamo farla per dare unarea nuova alla nostra casa sistemando un sistema di faretti e tinteggiando con colori. Consentono di distribuire la luce in modo omogeneo, posizionando i faretti dove occorre in diversi punti della stanza. Per installare i faretti nel controsoffitto bisogna predisporre l'impianto elettrico, diramato per ogni faretto, dopo aver montato l'orditura e prima di tutti questi accorgimenti permettono l'inserimento, in posizioni nascoste, di tubi al neon o altre luci (anche colorate) per illuminazione soffusa. Questa è un'operazione particolarmente facile e che potrete eseguire anche non avendo esperienza nel campo elettrico.

Molte persone, soprattutto coloro che dispongono di un giardino, decidono di collocare dei faretti da esterno per avere una migliore illuminazione e garantire allo stesso tempo un'atmosfera più suggestiva e piacevole.

Molte persone, soprattutto coloro che dispongono di un giardino, decidono di collocare dei faretti da esterno per avere una migliore illuminazione e garantire allo stesso tempo un'atmosfera più suggestiva e piacevole. Consentono di distribuire la luce in modo omogeneo, posizionando i faretti dove occorre in diversi punti della stanza. All'interno del nostro catalogo è presente una vasta scelta di faretti per incasso nel controsoffitto di forma rotonda o quadrata, con ottica larga o stretta, con. Stai cercando la soluzione perfetta per illuminare un ambiente con controsoffitto in cartongesso? È il luogo ideale dove inserire apparecchi da incasso o faretti su binario. Il controsoffitto in cartongesso può interessare l'intero soffitto oppure solo una porzione, creando solo alcune zone ribassate. Caratteristiche tecniche dei faretti controsoffitto. Un buon collegamento con i fili elettrici. Con un rilevatore di metalli individuare i profili del controsoffitto, per evitare di danneggarli e intaccare la struttura di sostegno del cartongesso; L'operazione dovrà essere effettuata con molta cautela per non rischiare di bucare il pannello, compromettendo il lavoro eseguito in precedenza. I faretti sono un ottimo complemento alla realizzazione di un controsoffitto. I faretti alogeni vanno alimentati con corrente a 12 v e possono essere di tipo fisso oppure orientabile. Ovviamente se dispondete di un controsoffitto tutto risulta ancora se stiamo lavorando su un controsoffitto in cartongesso o in legno il tutto risultera' facilitato dal normalmente i faretti sono dotati di una molla ad espansione laterale che una volta inserito il.